Hľadaj Zobraz: Univerzity Kategórie Rozšírené vyhľadávanie

45 171
projektov

Výkopy a základy - Konštrukcie budov

«»
Prípona
.rar
Typ
technický výkres
Stiahnuté
9 x
Veľkosť
0,2 MB
Jazyk
slovenský
ID projektu
43440
Posledná úprava
06.02.2014
Zobrazené
6 683 x
Autor:
peppo
Facebook icon Zdieľaj na Facebooku
Detaily projektu
Popis:
Výkopy a základy v CADe
Zaistenie stien

Steny výkopu môžu byť zvislé, alebo šikmé. Závisí to od zloženia základovej zeminy a od hĺbky výkopu. Ak je výkop plytší ako 1,5 m a zemina je súdržná, môžeme kopať zvislo. Ak je výkop hlbší, musíme steny pažiť. Ak je základová zemina nesúdržná, musíme ju tiež chrániť pred samovoľným padaním pažením alebo sa rozhodneme pre šikmé steny výkopu. V praxi sa ako skúška používa nasypanie výkopku lopatou na malú hromadu a na základe sklonu tohto malého kopčeka sa určí sklon šikmej steny výkopu. Bežne sa však zošikmené steny výkopov používajú veľmi málo, lebo sa zvyšuje prácnosť nutnosťou obsypať objekt po zhotovení suterénu.

Paženie

Ak je výkop hlbší ako 1,5 m, musíme zhotoviť paženie podľa zásad bezpečnosti pri zhotovovaní suterénneho muriva. Robí sa to väčšinou z dosiek, fošní alebo dielcov. Dnes sa na veľké stavby vo veľkej miere používa vzperné paženie, ktoré pozostáva z oceľových profilov. Na zhotovenie paženia na jednoduchý rodinný dom nám postačia dosky, ktoré pritlačíme k stenám výkopu hranolmi každého 1,5 m a tieto hranoly zabezpečíme šikmými vzperami. Ak dosky kladieme zvislo, hranoly prikladáme vodorovne. Stačia tri hranoly - pri spodnom okraji, v strede a pri hornom okraji výkopu. Ak dosky kladieme vodorovne, hranoly ukladáme zvislo na celú výšku výkopu vo vzdialenosti 1,5 m od seba. Nevýhodou týchto pažení oproti vzpernému paženiu je, že výdreva zavadzia v priestoroch budúceho suterénu.

Kľúčové slová:

Výkopy a základy

výkres

základové konštrukcie

zakladanie

konštrukcie



Obsah:
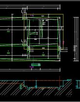
  • Vzorový výkres výkopov a základov obytného komplexu budovy- system zakladania

Zdroje:
  • Kreslenie základovych konstrukcii
O súboroch cookie na tejto stránke

Súbory cookie používame na funkčné účely, na zhromažďovanie a analýzu informácií o výkone a používaní stránky.

Nastavenia Povoliť všetko