Hľadaj Zobraz: Univerzity Kategórie Rozšírené vyhľadávanie

45 171
projektov

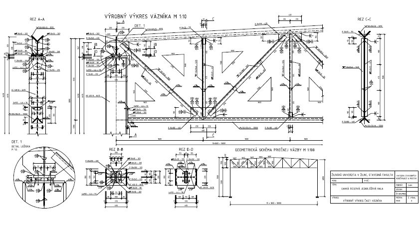
Priehradový väzník - detailny výkres

«»
Prípona
.rar
Typ
technický výkres
Stiahnuté
22 x
Veľkosť
0,4 MB
Jazyk
slovenský
ID projektu
43555
Posledná úprava
10.02.2014
Zobrazené
4 666 x
Autor:
peppo
Facebook icon Zdieľaj na Facebooku
Detaily projektu
Popis:
Priehradový väznik detailny

osná oceľová konštrukcie montovaných stavieb každého systému je zložená z prefabrikovaných univerzálnych oceľových prvkov, ktoré sú na stavbe vzájomne spojené skrutkovými spojmi. Oceľová konštrukcia je konštruovaná a dimenzovaná podľa všetkých platných noriem a predpisov (ČSN, DIN, EC). Každá konštrukcia budovy je doložená statickým výpočtom. Montované stavby systému môžu byť štandardne až trojpodlažné budovy. Nosné oceľové konštrukcie montovaných budov sú určené pre výstavbu vzdelávacích zariadení, predajných, prezentačných alebo ubytovacích priestorov.
Štandardne majú montované stavby systému strechu pultovú so strešnou krytinou tvorenou strešnými panelmi. Strecha však môže byť aj rovná s nastriekanou polyuretánovou izolačnou vrstvou. Podľa prianí zákazníka a architektonického začlenenia montovanej stavby do okolitej zástavby môže byť strecha aj sedlová s rôznou krytinou.

Kľúčové slová:

priehradový väznik

detaily

výkres

väznik

výkres väznika

oceľové väzníky



Obsah:
  • Detailný výkres oceľového priehradového strešného väznika

Zdroje:
  • Oceľove konštrukcie a detaily
O súboroch cookie na tejto stránke

Súbory cookie používame na funkčné účely, na zhromažďovanie a analýzu informácií o výkone a používaní stránky.

Nastavenia Povoliť všetko