Hľadaj Zobraz: Univerzity Kategórie Rozšírené vyhľadávanie

45 171
projektov

Inžinierska geológia - Stabilizácia stavebnej jamy

«»
Prípona
.rar
Typ
technický výkres
Stiahnuté
1 x
Veľkosť
0,1 MB
Jazyk
slovenský
ID projektu
44131
Posledná úprava
19.02.2014
Zobrazené
2 594 x
Autor:
peppo
Facebook icon Zdieľaj na Facebooku
Detaily projektu
Popis:
STABILIZÁCIA STAVEBNEJ JAMY- paženie
spôsob stabilizácie stien výkopov a podchytávania okolitých objektov
v stiesnených podmienkach metódou tryskovej injektáže na konkrétnom
stavebnom objekte
• navrhnúť technologický postup pre realizáciu stabilizácie stien
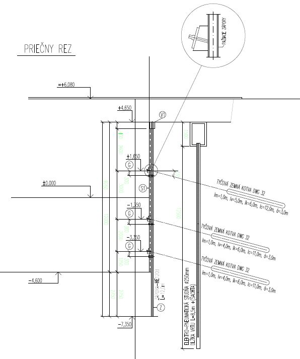
Na zaistenie stien stavebných jám a susedných objektov projektujeme pažiace konštrukcie ako sú záporové a mikrozáporové paženie, pilótové steny, milánske steny, trysková injektáž, štetovnice a klincované steny najčastejšie v kombinácií so striekaným betónom. Pažiace konštrukcie môžu byť dočasné i trvalé, nekotvené alebo kotvené horninovými kotvami. Voľba typu pažiacej konštrukcie závisí vždy na okrajových geologických a hydrogeologických podmienkach, na pôdorysnom a výškovom usporiadaní stavebnej jamy, na neskoršom využití pri výstavbe objektu v stavebnej jame, požiadavky na životnosť konštrukcie, a pod.


Kľúčové slová:

stabilizácia stavebnej jamy

zakladanie stavieb

geológia stavieb

paženie



Obsah:
  • Stavebné jamy, pouzitie stavebnych jám
    zastabilizovanie základových konštrukcií stavebných jám
    Paženie a pažiace konštrukcie stavebných jam
    Druhy pažení a hĺbené výkopy, zakladanie stavieb
O súboroch cookie na tejto stránke

Súbory cookie používame na funkčné účely, na zhromažďovanie a analýzu informácií o výkone a používaní stránky.

Nastavenia Povoliť všetko